Ufficio in vendita

Ferrara, Via Grillenzoni
€ 240.000
6 locali 6 locali
125 Mq 125 Mq
1 bagno 1 bagno

Ufficio in vendita

Ferrara, Via Grillenzoni

Descrizione annuncio

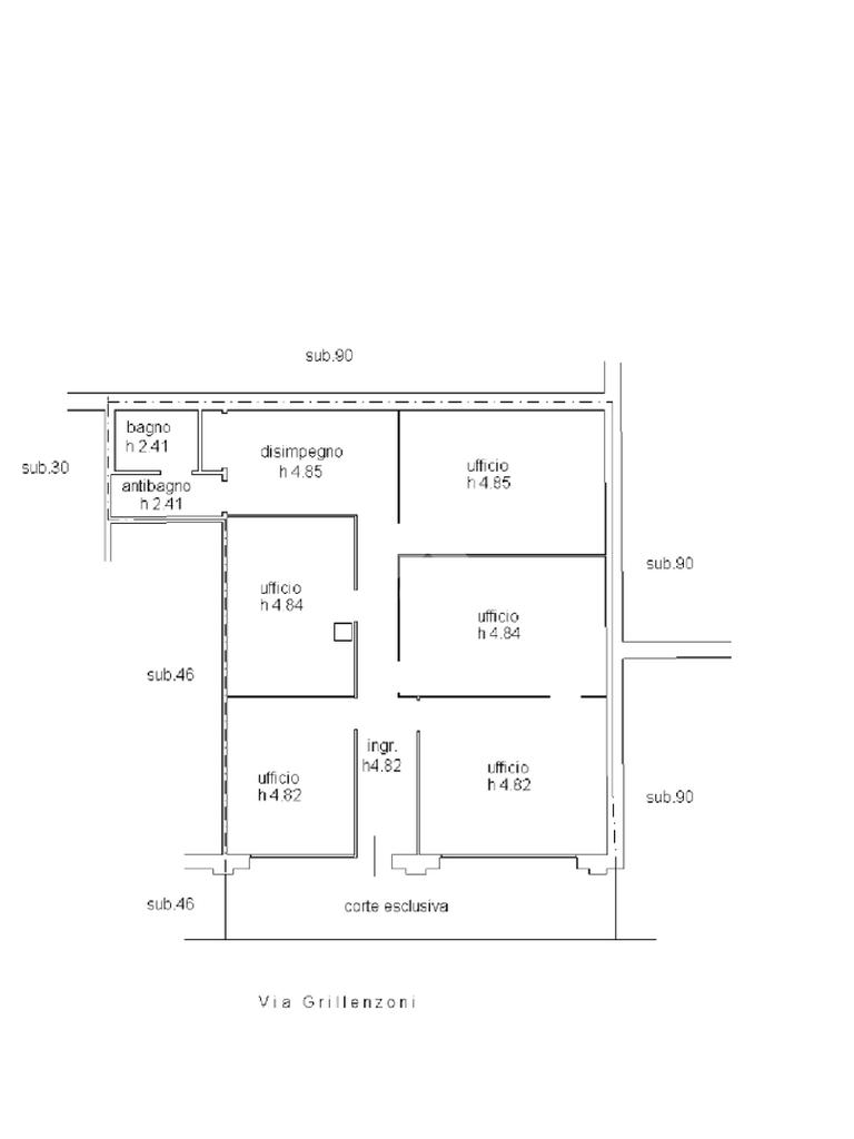
VIA GRILLENZONI: a pochi passi dalla Via Bologna, in una zona ad altissima densità commerciale, proponiamo in vendita già ararredato un moderno e luminoso immobile attualmente adibito a ufficio condiviso.

La proprietà si compone di:ingresso su corridoio con area adibita a sala d'attesa, tre uffici suddivisi da pareti in vetro antisfondamento, attualmente predisposti per ospitare due postazioni di lavoro complete, un ufficio con una grande postazione singola,una sala riunioni, un area relax ed un bagno già adeguato alle normative per l'accesso di persone con mobilità ridotta. Completa la proprietà un vano sopraelevato di circa 15mq perfetto come archivio.

E' presente riscaldamento a pavimento, condizionatori in ogni ufficio,sistema d'allarme, serranda elettrica, tendone ed un piccolo esterno di pertinenza di 20 mq.

La posizione a livello stradale e la disposizione interna lo rendono privo di barriere architettoniche.

Ideale per studi professionali/tecnici di varia natura. Ottimo anche come attività di coworking.

Mostra tutto

Nelle vicinanze

Trasporto pubblico Trasporto pubblico
Ferrara
Ferrara
2,1 Km
Bologna - Foro Boario
Bologna - Foro Boario
90 m
Trasporto pubblico
110 m
Ferrara Aleotti
Ferrara Aleotti
800 m
Ferrara Via Boschetto
Ferrara Via Boschetto
2,0 Km
Ricariche auto elettriche Ricariche auto elettriche
Eneldrive JFK
950 m
Eneldrive Castello Estense
1,7 Km
Eneldrive Parcheggio Via del Lavoro
2,1 Km
Eneldrive Casa del Bambino
2,2 Km
Eneldrive Poste
2,2 Km
Scuole Scuole
Scuola Elementare Ercole Mosti
200 m
Scuola media Teodoro Bonati
480 m
Scuola elementare Giovanni Pascoli
520 m
Scuola Materna San Luca
680 m
Asilo Nido "I Girasoli"
720 m
Farmacia Farmacia
Estense
50 m
Ferraris
330 m
Foro Boario
610 m
Jublin
640 m
Krasnodar
700 m
Ospedali Ospedali
Guardia Medica - Servizi socio sanitari
1,0 Km
Azienda USL di Ferrara
1,8 Km
Città della Salute "Cittadella San Rocco"
2,0 Km
Casa di cura "Salus"
2,4 Km
Centro di Medicina dello Sport
2,8 Km
Supermercati Supermercati
Conad City
650 m
Conad
690 m
Famila
700 m
Tuodì Superfresco
1,0 Km
Centro commerciale Ipercoop "Il Castello"
1,0 Km
Negozi Negozi
Capricci senza glutine
480 m
Al Forno in Bici
490 m
Forno
740 m
Globo
790 m
Este Spor Tecnic
890 m
Bar Bar
"New Bar Reno"
60 m
Bar "Blue Eyes"
100 m
Bar Pasticceria Gelateria Tropical
400 m
Bar "Putinati"
430 m
Bar Glayva
470 m
Ristoranti Ristoranti
Ristorante Cinese "Drago d'Oro"
170 m
Ristorante Giapponese "SU SA"
350 m
Ristorante Pizzeria "Il Ducale"
580 m
Ristorante Pizzeria "Al Cristallo"
630 m
Trattoria "L'ortica"
650 m
Mostra tutto

Caratteristiche

Rif.:
61128470
Piano:
Terra
Condizionamento:
Autonomo
Ascensore:
No
Riscaldamento:
Autonomo
Libero:
No
Mostra tutto
Prezzo Prezzo
€ 240.000
Rata mutuo Rata mutuo
€ 1.118 / mese
Spese annue Spese annue
€ 0
Proponi il tuo prezzoProponi il tuo prezzo

Classe Energetica

C
C
C
C
C
C
C
C
C
EP globale non rinnovabile:
27.46 kW h/m² anno
EP globale rinnovabile:
27.46 kW h/m² anno
EP invernale del fabbricato:
EP estiva del fabbricato:
Riscaldamento:
Autonomo
Tipo impianto:
A pavimento
Tipo alimentazione:
Metano

Ti interessa visionare l'immobile?

Fissa un appuntamento  Fissa un appuntamento

Richiedi informazioni

Clicca su Leggi per aprire l'informativa
* Questi campi sono obbligatori

Calcola il tuo mutuo

Semplice e senza impegno
Anticipo

( % )
Mutuo

( % )

pochi semplici passi

inserisci i tuoi dati
Questionario completato
Grazie per aver richiesto un appuntamento senza impegno con un nostro Consulente del Credito e Assicurativo.

Hai inserito correttamente tutti i dati necessari e a breve riceverai una e-mail con un link da convalidare per inviare i tuoi dati.
Affiliato
Le Case Di Ferrara Srl
Via Bologna, 104 44100 Ferrara (FE)

Il nostro staff


  • Stefano Fiorini
    Affiliato

  • Alessandra Cidale
    Coordinatrice

  • Enza Canosa
    Collaboratrice

  • Anna Maria Cidale
    Coordinatrice

  • Giovanna Magnanini
    Collaboratrice

  • Silvia Rita Popolo
    Collaboratrice
Via Bologna, 104 44100 Ferrara (FE)
Zona: Via Bologna - Argine Ducale - Foro Boario - Ippodromo
Mostra su mappa
Orari: dalle 09.00 alle 13.00 e dalle 15.30 alle 19.30 - Sabato mattina dalle 09.00 alle 13.00.
Affiliato
Le Case Di Ferrara Srl
Via Bologna, 104 44100 Ferrara (FE)

2025 Tecnocasa Franchising S.p.A. - P. IVA 08365160152 - Via Monte Bianco 60/A 20089 Rozzano (MI). Ogni agenzia ha un proprio titolare ed è autonoma. Privacy policy | Policy utilizzo | Cookie policy