Bilocale in vendita

Ferrara, Via Roveroni - Argine Ducale
€ 137.000
2 locali 2 locali
50 Mq 50 Mq
1 bagno 1 bagno

Bilocale in vendita

Ferrara, Via Roveroni - Argine Ducale

Descrizione annuncio

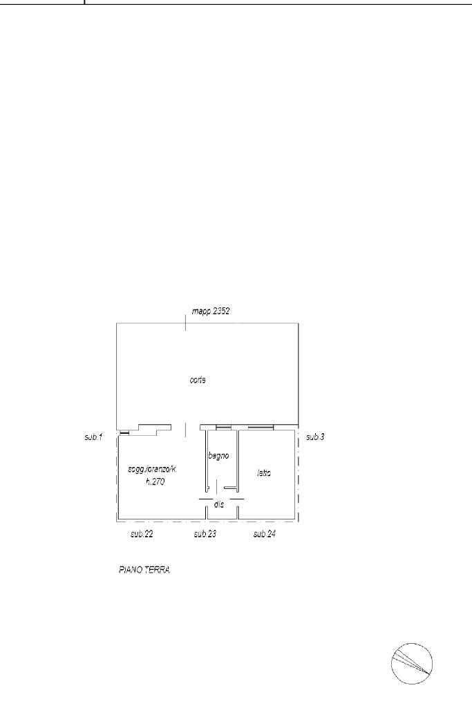
VIA ROVERONI: Adiacente a via Pitteri, nel cuore del quartiere Ippodromo, proponiamo un grazioso bilocale a pian terreno di 40 mq, ideale per chi cerca una soluzione abitativa funzionale e moderna. Situato in un contesto residenziale tranquillo, l'immobile è stato costruito nel 2003 e offre spazi ben distribuiti. L'appartamento si compone di due locali, con una zona giorno con cucina a vista, comoda e accogliente, perfetta per momenti di relax o per ospitare amici e familiari. Un grande disimpegno con una bella armadiatura separa il bagno, completo di doccia, e la camera da letto matrimoniale. Il giardino privaro di circa 40mq è il fiore all'occhiello di questa piccola, ma completa, abitazione

L'immobile è immediatamente abitabile e non necessita di lavori. Le spese condominiali sono basse, poichè tutte le utenze sono autonome.

Completa la proprietà un garage da 16mq, con sistema di allarme, dove poter riporre tranquillamente l'auto ed i propri effetti personali.

Questa soluzione si presenta ideale sia per un single o giovane coppia, alla ricerca di un'abitazione comoda al centro ma anche alle principali arterie stradali della città, sia come investimento,data la possibilità di locare l'immobilemolto facilmente.

Mostra tutto

Nelle vicinanze

Trasporto pubblico Trasporto pubblico
Ferrara
Ferrara
1,7 Km
Bologna - Argine Ducale
Bologna - Argine Ducale
20 m
Goretti - Bologna
Goretti - Bologna
70 m
Ferrara Aleotti
Ferrara Aleotti
1,0 Km
Ferrara Via Boschetto
Ferrara Via Boschetto
1,9 Km
Ricariche auto elettriche Ricariche auto elettriche
Eneldrive JFK
390 m
Eneldrive Castello Estense
1,1 Km
Eneldrive Casa del Bambino
1,6 Km
Eneldrive Poste
1,8 Km
Eneldrive Parcheggio Via del Lavoro
1,8 Km
Scuole Scuole
Scuola Materna San Luca
290 m
Scuola Elementare Ercole Mosti
410 m
Scuola elementare Giovanni Pascoli
640 m
Scuola media Teodoro Bonati
660 m
Facoltà di Architettura
740 m
Farmacia Farmacia
Jublin
80 m
Estense
550 m
Farmacia San Romano
600 m
Foro Boario
760 m
Farmacia Calzolari
870 m
Ospedali Ospedali
Azienda USL di Ferrara
1,3 Km
Città della Salute "Cittadella San Rocco"
1,5 Km
Guardia Medica - Servizi socio sanitari
1,5 Km
Casa di cura "Salus"
1,9 Km
Centro di Medicina dello Sport
2,3 Km
Supermercati Supermercati
Tuodì Superfresco
530 m
Conad City
570 m
Despar
580 m
Conad
600 m
Metà Supermercati
890 m
Negozi Negozi
Forno
230 m
Slam Jam Outlet
380 m
Dal mio fornaio
570 m
Freeride
590 m
Panificio Perdonati
660 m
Bar Bar
Bar "Caffè Ristretto"
90 m
Bar Glayva
230 m
Bar "Luca"
340 m
Bar "Blue Eyes"
460 m
"New Bar Reno"
520 m
Ristoranti Ristoranti
Ristorante Pizzeria "Il Ducale"
20 m
Ristorante cinese "Shanghai"
170 m
Ristorante Pizzeria Archibugio
270 m
Ristorante Pizzeria "Sebastian Pub"
350 m
Trattoria "L'ortica"
360 m
Mostra tutto

Caratteristiche

Rif.:
61103610
Totale piani:
3
Box:
1
Terrazzi:
1
Camere da letto:
1
Arredamento:
Completo
Mostra tutto
Prezzo Prezzo
€ 137.000
Rata mutuo Rata mutuo
€ 628 / mese
Spese annue Spese annue
€ 400
Proponi il tuo prezzoProponi il tuo prezzo

Classe Energetica

F
F
F
F
F
F
F
F
F
EP invernale del fabbricato:
EP estiva del fabbricato:
Anno di costruzione:
2003
Riscaldamento:
Autonomo
Tipo impianto:
A radiatori
Tipo alimentazione:
Altro

Ti interessa visionare l'immobile?

Fissa un appuntamento  Fissa un appuntamento

Richiedi informazioni

* Questi campi sono obbligatori

Calcola il tuo mutuo

Semplice e senza impegno
Anticipo

( % )
Mutuo

( % )

pochi semplici passi

inserisci i tuoi dati
Questionario completato
Grazie per aver richiesto un appuntamento senza impegno con un nostro Consulente del Credito e Assicurativo.

Hai inserito correttamente tutti i dati necessari e a breve riceverai una e-mail con un link da convalidare per inviare i tuoi dati.
Affiliato
Le Case Di Ferrara Srl
Via Bologna, 104 44100 Ferrara (FE)

Il nostro staff


  • Stefano Fiorini
    Affiliato

  • Alessandra Cidale
    Coordinatrice

  • Enza Canosa
    Collaboratrice

  • Giovanna Magnanini
    Collaboratrice

  • Silvia Rita Popolo
    Collaboratrice
Via Bologna, 104 44100 Ferrara (FE)
Zona: Via Bologna - Argine Ducale - Foro Boario - Ippodromo
Mostra su mappa
Orari: dalle 09.00 alle 13.00 e dalle 15.30 alle 19.30 - Sabato mattina dalle 09.00 alle 13.00.
Affiliato
Le Case Di Ferrara Srl
Via Bologna, 104 44100 Ferrara (FE)

2025 Tecnocasa Franchising S.p.A. - P. IVA 08365160152 - Via Monte Bianco 60/A 20089 Rozzano (MI). Ogni agenzia ha un proprio titolare ed è autonoma. Privacy policy | Policy utilizzo | Cookie policy